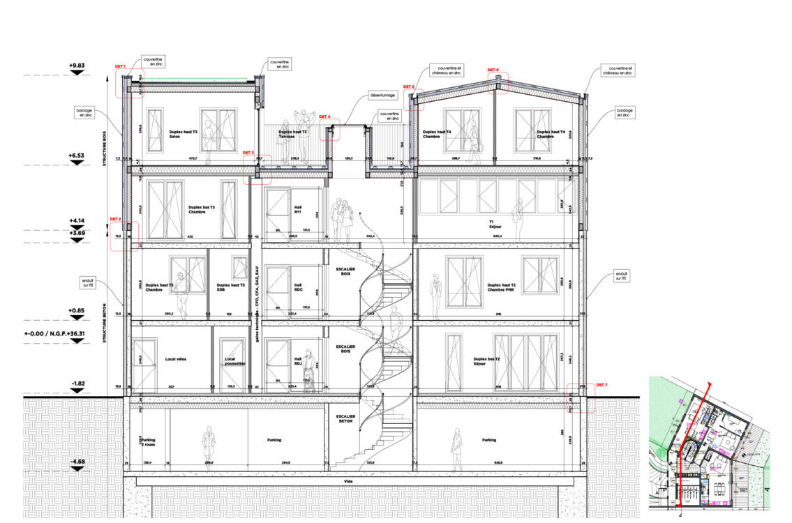
CONSTRUCTION 16 LOGEMENTS EN ACCESSION & COMMERCE & PARKING
CHANTIER EN COURS
PROGRAMME :
Construction neuve 16 logements (du studio au Duplex) et un commerce et parking sous terrain
POINTS FORTS :
-
Site urbain dense
-
Structure & PAREMENT bois
-
Structure béton (niveau PPRI – Inondable)
Maitrise d’ouvrage : Privée
Permis de construire dessiné par notre consœur Paula Bianco Architecte
Conception et chantier en association sur une durée « déterminée » avec Yann Brunel Architecte



































