bim-architectes
L'agence qui poutre !
  • SURELEVATIONS LOGEMENTS
  • HOTEL COMMERCE BUREAU
  • AMBASSADES
  • EQUIPEMENTS PUBLICS
  • A propos
  • Contact

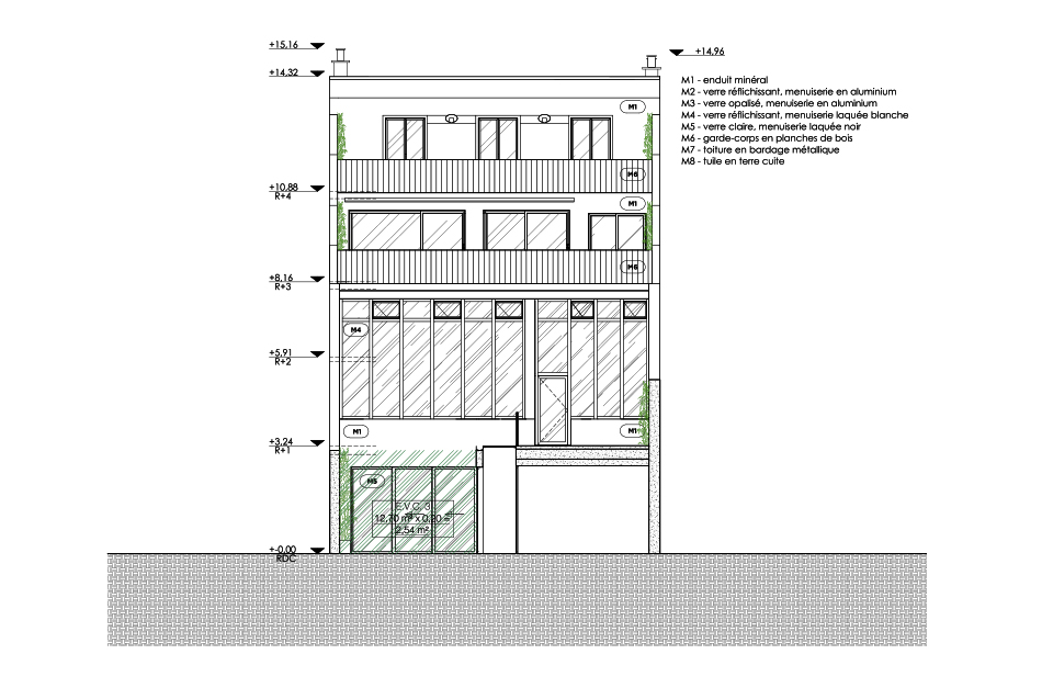
immeuble – restructuration – Montreuil

Loading

Liens

Architecture

Ecoles

Réalisations

L’agence

Bim ! Architectes,

30 rue des Partants 75020 PARIS

Cell : +33 618623169
Email : contact@bim-architectes.com

© 2021 Bim-Architectes | Mentions Légales.